Lorscher Str. 22 • 68642 Bürstadt

Konzentrierte Beratung – schöne Wohngärten!

Unser Wissen zu Standortbedingungen von Pflanzen kann allesentscheidend sein. Ausstattung, Kosten und Nutzen werden im Gespräch klar. Materialien nehmen wir in Ihrem Auftrag genau „unter die Lupe“. Bei Interesse besuchen wir Sie in Ihrem Garten. Ein Plan und Fotos Ihres Gartens helfen uns, vor unserem Gartentermin einen Überblick zu gewinnen. Jahrzehntelange Erfahrung ermöglicht uns, schnell zu erkennen, was machbar ist und wo das Potential Ihres Anwesens liegt.

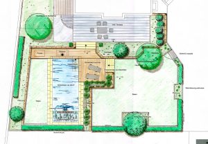
Maßgeschneiderte Planung für Ihren Garten

Basierend auf Ihren Wünschen und den Besonderheiten Ihres Gartens erstellen wir ein individuelles Konzept. Wir wählen passende Pflanzen, Elemente und Materialien aus, um eine harmonische und nachhaltige Lösung zu schaffen, die perfekt zu Ihrem Außenbereich passt.

Gute Beratung beginnt mit Fragen:

  • Wo brauchen Sie Sitzplätze oder Sichtschutz?
  • Benötigen Sie Hilfe bei der Gartenpflege?
  • Sind Ihre Gartenwege und Treppen komfortabel?
  • Bietet Ihr Garten Stauraum und technischen Komfort?
  • Gehört ein Naturpool, Schwimmteich, Brunnen oder Bachlauf zu Ihren Wünschen?
  • Lieben Sie Staudengärten, Bienenwiesen, romantische Nischen?
  • Wünschen Sie sich einen individuellen Garten, der Ihr Leben angenehmer macht?

Ein engagiertes Beratungsgespräch ist oft der erste Schritt zu mehr Lebensqualität. Ihre Wünsche an Ihr Leben im Garten genau zu verstehen ist unser wichtigstes Anliegen. Unsere Aufgabe ist es, Gestaltungsideen zu präsentieren, die zu Ihrem Leben und dem Stil Ihres Hauses passen.

Gut versorgtes Grün und ein rundum gepflegter Garten steigert die Freude am Zuhause sein.

Ein gut gepflegter Garten sorgt nicht nur für ästhetische Schönheit, sondern auch für ein gesundes, lebendiges Umfeld. Regelmäßige Pflege und die richtige Versorgung von Pflanzen fördern das Wachstum und schaffen eine einladende Atmosphäre.

Von der Idee zur grünen Oase – Wir machen Ihren Traumgarten wahr.

Ob Modernisierung oder Neugestaltung: Wir zeigen Ihnen verschiedene Lösungen – unter Berücksichtigung aller Rahmenbedingungen. Auch wenn Sie nur einen Teil Ihres Gartens verändern wollen. Gerne können wir auch einen Gesamtplan erstellen: Alle Ideen werden harmonisch aufeinander abgestimmt und können peu à peu verwirklicht werden. Ob Vorgarten, Hinterhof oder weitläufiger Wohngarten. Unser Ziel sind maßgeschneiderte, hochwertige Gärten, die unseren Auftraggebern langfristig mehr Lebensqualität bieten.

Garten-Planung durch Experten: Ihre Vorteile auf einen Blick

  • Effiziente Vorgehensweise: Ein Plan ist nur so viel wert, wie die Erfahrung, auf der er fußt.
  • Schnelle Resultate: Fachkenntnis und das richtige Werkzeug entscheiden über rasche Fortschritte und das Staunen unserer Kunden, wenn alles fertig ist.
  • Stil und individuelle Lösungen: Je verzwickter / anspruchsvoller der Bedarf, desto notwendiger und effektiver ist Expertenwissen.

Unser Planungsteam freut sich auf Ihre Anfrage!